Skip to content

Emergency Exit Plan Template

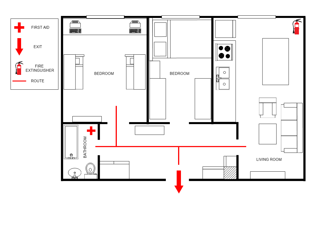
    emergency exit plan template

    Download and Print emergency exit plan template Listed below

    Emergency Exit Plan Template In Google Docs Word Template

    Emergency Exit Floor Plan Template Floor Roma

    Page 2 Editable Emergency Plan Templates In PDF To Download

    Emergency Exit Plan Template Google Docs Word Template

    Emergency Exit Plan Template Google Docs Word Template