Creating a pre task plan is crucial for ensuring safety and efficiency in any work environment. A pre task plan template provides a structured approach to identifying potential hazards, assessing risks, and implementing controls to mitigate those risks. By utilizing a pre task plan template, organizations can proactively address safety concerns and prevent accidents before they occur.
Effective pre task planning involves thorough analysis of the task at hand, identification of potential hazards, and development of a strategy to eliminate or minimize those hazards. By using a standardized template, organizations can streamline the planning process and ensure that all necessary steps are taken to protect workers and prevent incidents.
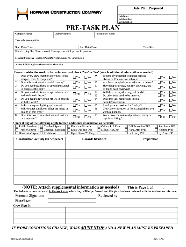
Pre Task Plan Template
A pre task plan template typically includes sections for identifying the task, assessing risks, implementing controls, and documenting the plan. It may also include space for signatures of those involved in the planning process to ensure accountability and commitment to safety. The template serves as a guide for workers to follow before beginning any task, helping them to stay focused on safety and avoid unnecessary risks.
When using a pre task plan template, it’s important to involve all relevant stakeholders in the planning process. This may include workers who will be performing the task, supervisors, safety professionals, and any other individuals who can provide valuable input. Collaboration ensures that all perspectives are considered and that the plan is comprehensive and effective.
Regular review and update of the pre task plan template is also essential to ensure its continued relevance and effectiveness. As tasks change or new hazards are identified, the plan should be modified accordingly to address these changes. By continually improving the pre task planning process, organizations can enhance safety practices and protect their workers from harm.
In conclusion, a pre task plan template is a valuable tool for promoting safety and reducing risks in the workplace. By using a structured approach to planning tasks, organizations can identify hazards, assess risks, and implement controls to protect their workers. Regular review and update of the plan ensures that it remains relevant and effective in preventing accidents. Incorporating a pre task plan template into your organization’s safety practices can help create a culture of safety and ensure that workers return home safely at the end of each day.
