Ensuring the safety of workers and visitors at a construction site, manufacturing plant, or any other workplace is a top priority for employers. One way to achieve this is by developing a site-specific safety plan that outlines the specific hazards present at the site and the measures that will be taken to mitigate those risks. This plan helps to ensure that everyone at the site is aware of the potential dangers and knows how to respond in case of an emergency.
One of the most effective ways to create a site-specific safety plan is by using a template in a Word document. This template provides a structured format that can be easily customized to fit the specific needs of your workplace. It includes sections for identifying hazards, implementing safety measures, and detailing emergency procedures.
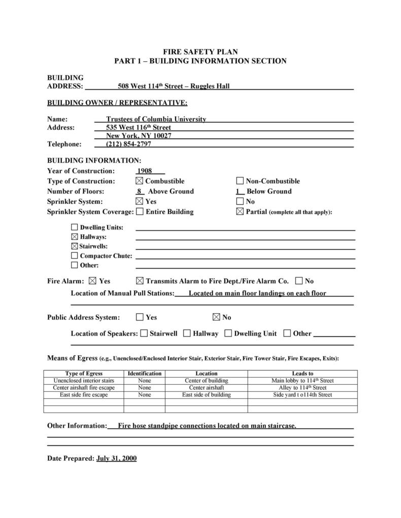
Site Specific Safety Plan Template Word Doc
When using a site-specific safety plan template in Word, it is important to customize it to reflect the unique hazards present at your workplace. Start by identifying the specific risks that workers may encounter, such as falls, chemical exposure, or machinery accidents. Then, outline the safety measures that will be implemented to prevent these incidents from occurring.
Next, detail the emergency procedures that will be followed in case of an accident or other dangerous situation. This may include evacuation routes, emergency contact information, and instructions for using fire extinguishers or other safety equipment. It is important to ensure that all workers are familiar with these procedures and have access to the information they need to respond quickly and effectively in an emergency.
Regularly reviewing and updating the site-specific safety plan is also crucial to ensure that it remains relevant and effective. As new hazards emerge or changes are made to the site, the plan should be adjusted accordingly. By consistently monitoring and improving safety practices, employers can create a work environment that prioritizes the well-being of everyone on site.
In conclusion, a site-specific safety plan template in Word can be a valuable tool for ensuring the safety of workers and visitors at a workplace. By customizing this template to address the specific hazards present at the site and regularly reviewing and updating it, employers can create a comprehensive plan that helps to prevent accidents and protect the well-being of everyone on site.
